Проект
House 35 - двуетажна къща с гледка към града








Детайли за проекта
Тип сграда: | Еднофамилни сгради |
---|---|
Локация: | Борилово |
Площ: | |
Фаза: | EXTR |
Година: | |
РЗП: | |
Екстериорни материали: | Естествен камък, дъсчена обшивка, бяла мазилка |
Архитектурен проект за двуетажна къща с гледка към града
Този архитектурен проект представя двуетажна къща с традиционно модерен дизайн, разположена на живописно място с невероятна гледка към града. Съчетавайки елементи от традиционната и съвременната архитектура, тази къща предлага комфорт, стил и функционалност.
Фасадни материали
- Естествен камък: Фасадата на къщата е облицована с естествен камък, който придава топлина и устойчивост, съчетавайки се хармонично с околната природа.
- Дъсчена обшивка: Дъсчената обшивка добавя текстурен и визуален интерес, създавайки уют и традиционен чар.
- Бяла мазилка: Чистата и елегантна бяла мазилка допълва фасадата, придавайки съвременен и изчистен вид на къщата.
Първо ниво
- Дневна с трапезария и кухня: Просторна дневна зона, съчетана с трапезария и модерна кухня. Оттук има излаз на огромна веранда, която осигурява плавен преход между вътрешното и външното пространство, идеална за отдих и социални събития.
- Веранда: Голямата веранда предлага впечатляваща гледка към града и е обособена с удобни мебели и декоративни елементи, създаващи перфектното място за релаксация.
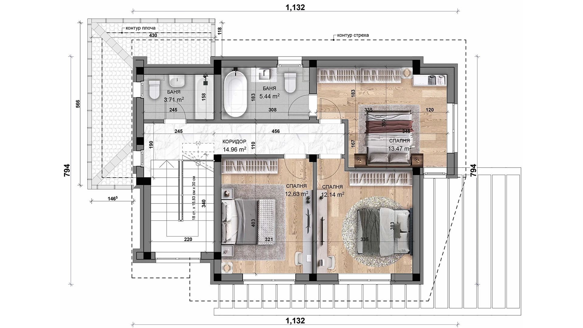
Второ ниво
- Спални: Второто ниво включва три комфортни спални, всяка проектирана с внимание към детайла и функционалността. Големите прозорци осигуряват изобилие от естествена светлина и панорамни гледки.
- Бани: На този етаж са разположени две модерни бани, оборудвани с висококачествени материали и съвременни удобства, осигуряващи комфорт и естетика.
Външни пространства
- Голям двор: Дворът на къщата е проектиран с различни видове цветя и храсти, създавайки красива и успокояваща градина. Този озеленен оазис допринася за уюта и естетиката на имота, като предоставя множество възможности за отдих и забавления на открито.
Дизайн и визуализация
Този архитектурен проект е визуализиран с помощта на най-съвременни 3D технологии, които позволяват детайлно представяне на всички аспекти на дизайна. Визуализацията акцентира върху хармонията между традиционния и съвременния стил, създавайки уникално и привлекателно жилищно пространство.
Заключение
Тази двуетажна къща с гледка към града съчетава традиционна и модерна архитектура, предлагайки комфорт, стил и функционалност. Проектът използва висококачествени материали като естествен камък, дъсчена обшивка и бяла мазилка, за да създаде естетически привлекателна и устойчива структура. Просторната дневна зона, уютните спални и красивият двор с разнообразна растителност правят тази къща идеален избор за съвременния начин на живот.