Проект
House 29-4 - двуетажна къща-близнак












Детайли за проекта
Тип сграда: | Еднофамилни сгради |
---|---|
Локация: | Змейово |
Площ: | |
Фаза: | EXTR |
Година: | |
РЗП: | |
Екстериорни материали: | Диамантена ламарина, бяла мазилка, камък травертино |
Архитектурен проект за модерна двуетажна къща-близнак с гледка към града
Този архитектурен проект представя модерна двуетажна къща-близнак, разположена в нов жилищен комплекс в гориста област, само на няколко километра от града. Къщата се отличава със съвременен дизайн и функционално разпределение, създавайки комфорт и стил за своите обитатели. Визуализацията на проекта подчертава използването на висококачествени материали и големи витрини, които предоставят невероятни гледки към града.
Първо ниво
- Дневна зона: Просторна дневна с площ от 70 квадратни метра, която осигурява изобилие от естествена светлина и комфорт.
- Гараж: Гараж за два автомобила, осигуряващ удобство и сигурност за обитателите.
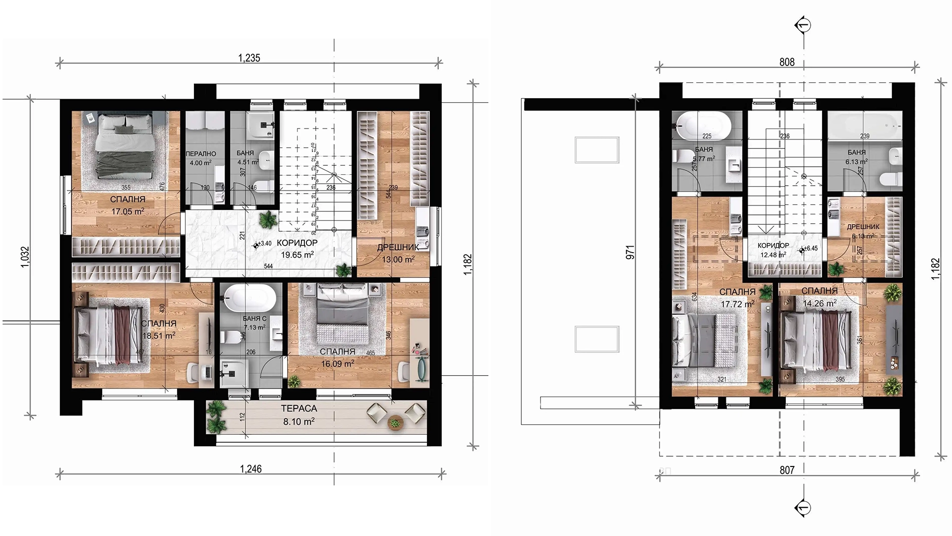
Второ ниво
- Спални: Три уютни спални, проектирани за максимален комфорт и спокойствие.
- Бани: Две модерни бани, оборудвани с всички необходими удобства и съвременен дизайн.
- Мокро помещение: Практично мокро помещение, осигуряващо допълнително удобство за домакинството.
Външни удобства
- Голям двор: Просторен двор, който предоставя много зони за отдих и развлечения на различни нива, благодарение на наклонения терен.
- Джакузи: Луксозно джакузи, което предлага релаксация и удоволствие на открито.
- Шезлонги под сенчест навес: Зона за релакс с шезлонги под сенчес навес.
- Инфинити басейн: Инфинити басейн, който предлага незабравими гледки и усещане за лукс.
- Външно огнище: Огнище на по-ниско ниво, идеално за вечерни събирания и уютни моменти.
- Веранда: Веранда с директна връзка към дневната, създаваща плавен преход между вътрешното и външното пространство.
Материали и дизайн
- Диамантена ламарина: Специфична диамантена ламарина, която придава уникален и съвременен вид на къщата.
- Бяла мазилка: Чистата и елегантна бяла мазилка подчертава модерния стил на къщата.
- Камък травертино: Камъкът травертино добавя естествен и изискан акцент към фасадата.
- Рамкови елементи с LED осветление: Придават елегантност и модерност на външния вид на къщата.
- Ограда от габиони: Ограда от габиони, която комбинира функционалност и естетика.
Архитектурен проект и визуализация
Съвременната и елегантна визия на къщата-близнак, съчетана с просторни и светли вътрешни пространства, я правят идеална за модерния начин на живот. Висококачествените материали и интелигентното разпределение на помещенията създават уникално жилищно пространство с прекрасни гледки към града.
Заключение
Тази двуетажна къща-близнак в жилищен комплекс предлага съвременна архитектура, просторни и удобни жилищни площи и висококачествени материали. Проектът е перфектен за семейства, които търсят комфорт, стил и невероятни панорамни гледки. Визуализацията акцентира върху всички детайли и удобства, които правят тази къща идеално място за живот и почивка в гориста област с гледка към града.