Проект
House 23 - къща с модерна визия и басейн







Детайли за проекта
Тип сграда: | Еднофамилни сгради |
---|---|
Локация: | Хисаря |
Площ: | |
Фаза: | EXTD |
Година: | |
РЗП: | |
Екстериорни материали: | Стъкло, бетон, метал |
Проект за Луксозна Двуетажна Къща с Модерна Визия, Подчертани Форми, Басейн и Покрита Веранда
Представяме ви нашия проект за луксозна двуетажна къща с модерна визия, отличаваща се с подчертани форми и елегантна архитектура. Този проект съчетава съвременен стил с висок клас удобства, включително басейн и покрита веранда, за да създаде идеалното жилищно пространство за вас и вашето семейство.
Архитектура
Проектът за луксозната двуетажна къща е създаден с акцент върху модерната архитектура и естетиката. Основните характеристики на архитектурата включват:
- Подчертани форми: Къщата се отличава с изчистени линии и геометрични форми, които създават усещане за динамика и съвременност.
- Разпределение на пространствата: Внимателно обмисленото разпределение осигурява максимален комфорт и функционалност, като обединява вътрешните и външните пространства.
- Просторни вътрешни пространства: Интериорът на къщата е проектиран така, че да осигурява усещане за простор и свобода, с отворени планове и високи тавани.
Визия
Визията на проекта е насочена към създаване на луксозен и впечатляващ дом, който съчетава естетика и практичност:
- Модерни материали и цветове: Използваме висококачествени материали като стъкло, бетон и метал, комбинирани с елегантни и неутрални цветови схеми, които подчертават модерната визия на къщата.
- Панорамни прозорци: Големите прозорци осигуряват изобилие от естествена светлина и създават плавен преход между вътрешното и външното пространство.
- Подчертани архитектурни детайли: Интегрирането на декоративни елементи и иновативни архитектурни решения придават уникален и стилен вид на къщата.
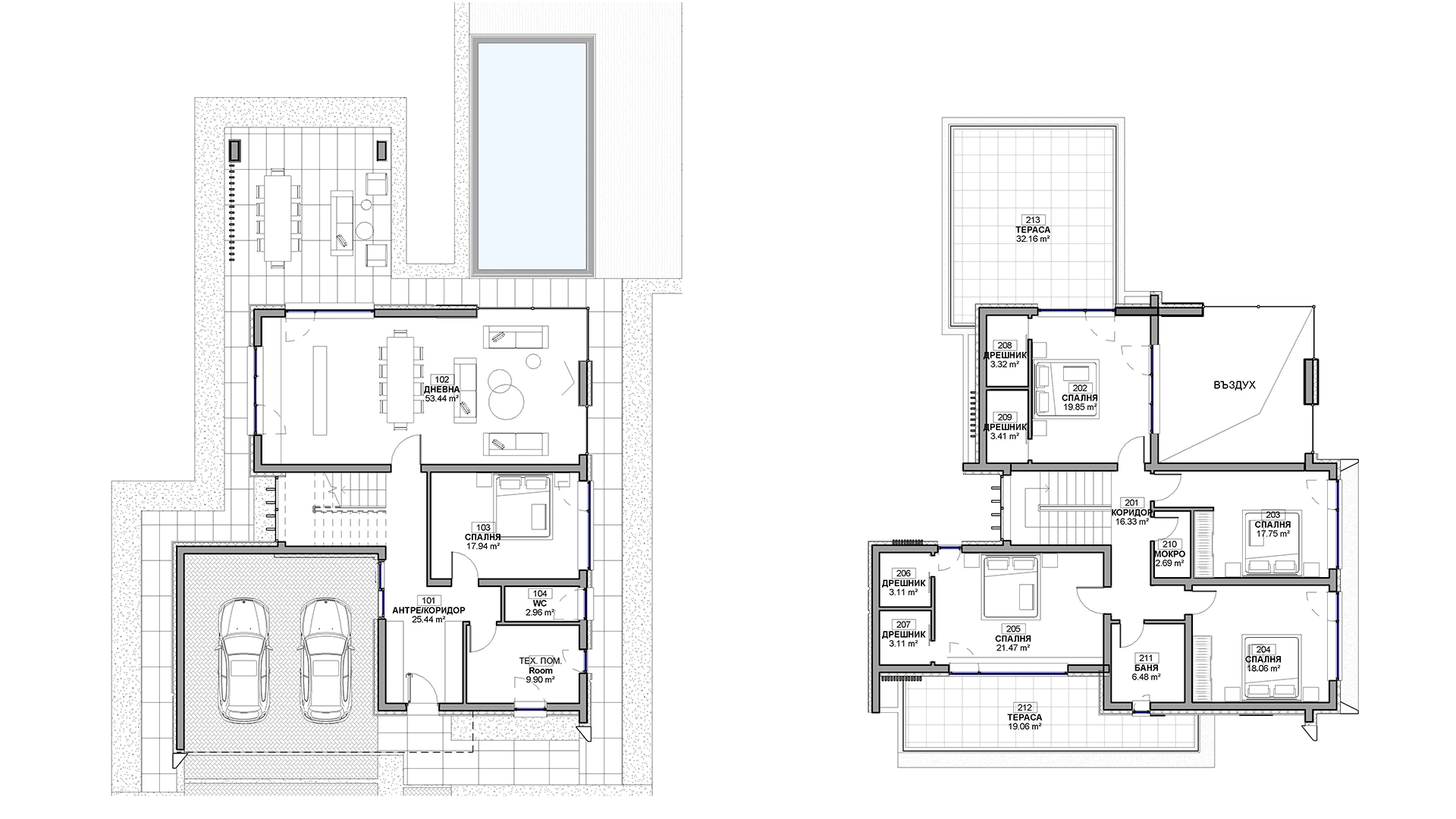
Функционалности
- Просторни дневни зони: На първия етаж се намират отворени дневни зони, включващи кухня, трапезария и хол, които са идеални за семейни събирания и социални събития.
- Частни зони: Вторият етаж е предназначен за спални и бани, осигурявайки личното пространство и комфорт на обитателите.
- Тераси и балкони: Проектът включва просторни тераси и балкони, които предлагат прекрасни гледки и допълнително пространство за отдих.
- Басейн: Модерният басейн е перфектното място за релаксация и забавление през топлите месеци, като същевременно допълва луксозната визия на къщата.
- Покрита веранда: Уютната покрита веранда предоставя идеалното пространство за отдих и социални събирания на открито, защитено от атмосферните условия.
Дизайн на Осветление
- Фасадно осветление: Интегрираното LED осветление акцентира върху архитектурните форми и придава драматичен и стилен ефект през нощта, подчертавайки уникалните черти на фасадата.
- Интериорно осветление: Модерните осветителни тела в интериора са избрани така, че да осигуряват достатъчно светлина и да допълват съвременния стил на дома.
- Осветление на басейна и верандата: Специално осветление за басейна и покритата веранда създава магическа атмосфера вечер.
Екстериор и Ландшафт
- Модерен ландшафтен дизайн: Озеленяването и външните пространства са проектирани с внимание към детайла, включвайки съвременни градински елементи и удобства като тераси, алеи и зони за отдих.
- Гараж и паркинг: Проектът включва удобен гараж и паркинг за автомобили, интегрирани в общия дизайн на къщата.
Проектът за луксозна двуетажна къща с модерна визия, подчертани форми, басейн и покрита веранда предлага идеалното съчетание на съвременен стил и функционалност. С уникалното си архитектурно решение и впечатляващ дизайн, този дом е проектиран да бъде не само естетически привлекателен, но и изключително удобен за живеене. Свържете се с нас, за да превърнем вашата визия в реалност и да създадем дом, който отговаря на всички ваши нужди и предпочитания.