Проект
House 19 - къща с веранда






Детайли за проекта
Тип сграда: | Еднофамилни сгради |
---|---|
Локация: | Варна |
Площ: | |
Фаза: | TP |
Година: | |
РЗП: | |
Екстериорни материали: | Дъсчена обшивка, кантове около прозорците |
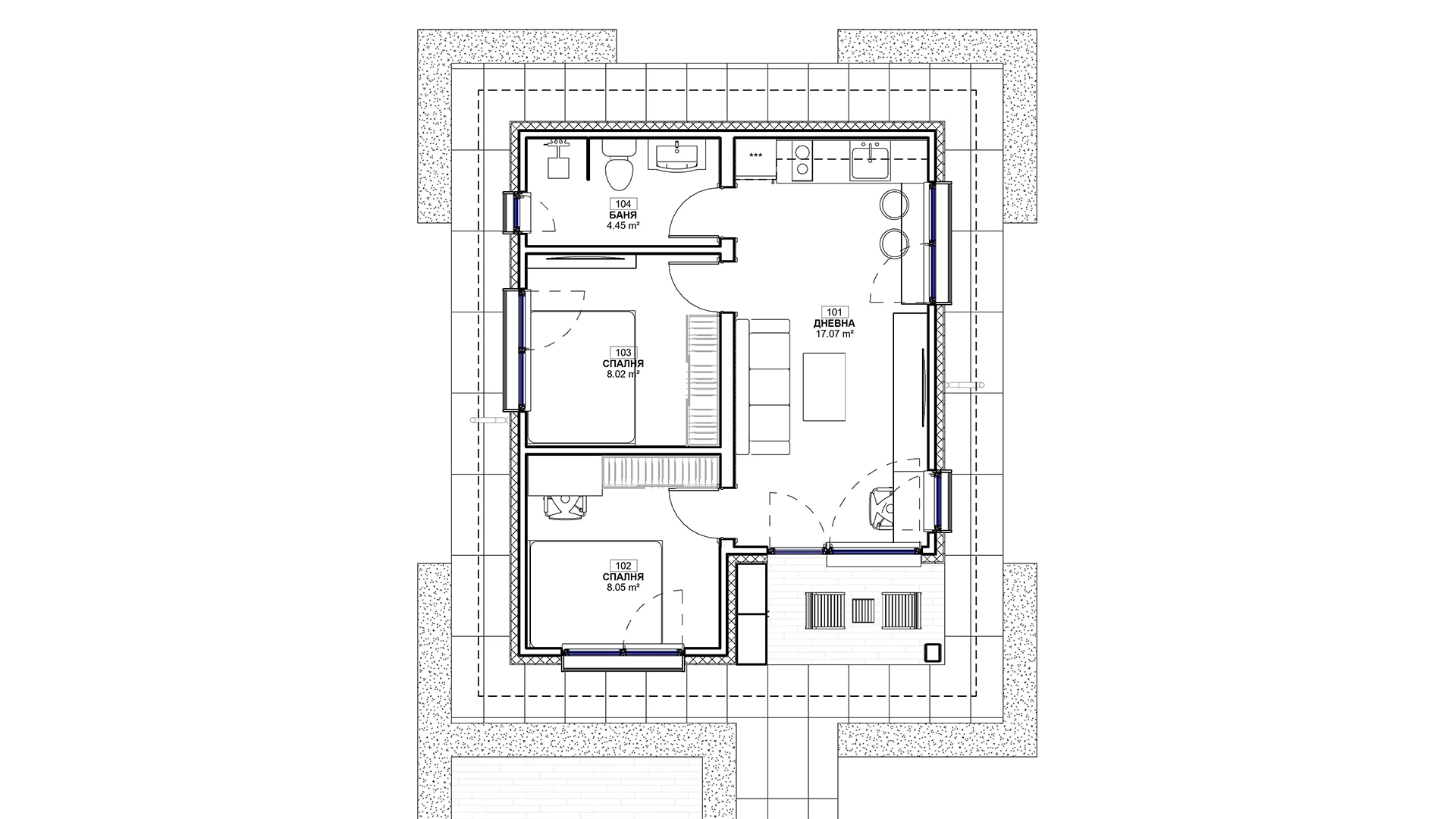
Проект за Компактна Едноетажна Къща с Дневна, Спалня, Детска Стая и Веранда
Представяме ви нашия проект за много компактна едноетажна къща, създадена с акцент върху ефективната архитектура и оптималното използване на пространството. Този проект включва уютна дневна, функционална детска стая, спалня и малка веранда, като фасадата е подчертана с елементи от дъсчена обшивка и кантове около прозорците, придаващи топлина и характер на дома.
Архитектура
Проектът за компактната едноетажна къща е създаден с мисъл за практичността и естетиката. Основните характеристики на архитектурата включват:
- Компактност: Проектирана с оптимално използване на пространството, къщата предлага всички необходими удобства в компактни размери, подходящи за малки парцели.
- Разпределение: Всички помещения са удобно разположени на едно ниво, което осигурява лесен достъп и комфорт за обитателите.
- Фасадни елементи с дъсчена обшивка: Дъсчената обшивка придава на къщата топъл и приветлив външен вид, съчетавайки модерни и традиционни архитектурни елементи.
- Кантове около прозорците: Кантовете подчертават прозорците, добавяйки допълнителен декоративен елемент и завършен вид на фасадата.
- Малка веранда: Уютната веранда предлага допълнително пространство за отдих на открито, идеално за сутрешно кафе или вечерни моменти на релаксация.
Функционалности
- Компактна дневна: Дневната е сърцето на дома, проектирана като отворено пространство, което съчетава комфорт и стил. Тя е идеална за семейни събирания и отдих.
- Детска стая: Функционалната детска стая е проектирана с мисъл за комфорта и нуждите на детето, осигурявайки достатъчно пространство за игри и учене.
- Спалня: Спалнята предлага уютно и спокойно място за почивка, с достатъчно място за съхранение и лични вещи.
- Баня: Компактна и добре оборудвана баня, която предлага всичко необходимо за ежедневния комфорт на обитателите.
Дизайн на Осветление
- Градинско осветление: Интегрираното градинско осветление създава уютна атмосфера около къщата и подчертава елементите на ландшафта вечер.
- Интериорно осветление: Модерните осветителни тела в интериора осигуряват достатъчно светлина и допълват съвременния стил на дома.
Екстериор и Ландшафт
- Ландшафтен дизайн: Озеленяването около къщата е проектирано с внимание към детайла, включвайки малки градински елементи и зони за отдих.
- Веранда: Малката веранда предлага уютно пространство за релаксация и социални събирания на открито.
Проектът за много компактна едноетажна къща с дневна, детска стая, спалня и веранда съчетава функционалност и естетика, предлагайки идеалното решение за съвременния начин на живот. С подчертания си архитектурен стил и ефективно използване на пространството, този дом е проектиран да осигури максимален комфорт и удоволствие на своите обитатели. Свържете се с нас, за да превърнем вашата визия в реалност и да създадем уютен дом, който отговаря на всички ваши нужди и предпочитания.