Проект
A-Frame Village – вилно селище с бунгала
















Детайли за проекта
Тип сграда: | Жилищни комплекси |
---|---|
Локация: | Девин |
Площ: | |
Фаза: | EXTD |
Година: | |
РЗП: | |
Екстериорни материали: | Поцинкована ламарина и големи витрини |
Проект за Вилно Селище в Гората с Бунгала Тип A-FRAME
Представяме ви нашия проект за уникално вилно селище, разположено в сърцето на гората и в близост до живописно езеро. Селището се състои от два типа компактни бунгала с A-FRAME конструкция, съчетаващи съвременна архитектура с природна хармония. Основните материали, използвани в проекта, включват поцинкована ламарина и големи витрини, които предоставят невероятни гледки и създават усещане за простор.
Архитектура
- A-frame конструкция: Устойчивост, енергийна ефективност и интеграция с природата.
- Компактност: Оптимално използване на пространството за краткотраен или дългосрочен престой.
- Поцинкована ламарина и големи витрини: Дълготрайност и впечатляващи гледки.
- Интеграция с природата: Минимално въздействие върху околната среда и максимален комфорт.
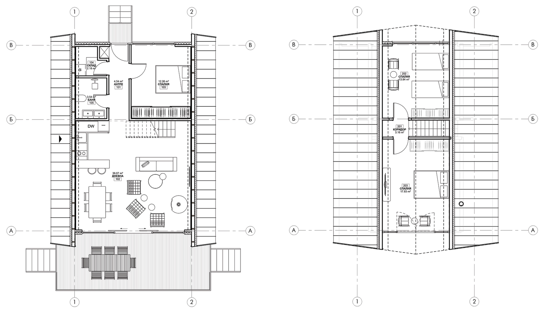
Типове Бунгала
- Тип А: Двуетажно компактно бунгало с дневна, спалня, баня и малка веранда.
- Тип B: Бунгало с две спални, просторна веранда и витрини на двата етажа.
Функционалности
- Удобни дневни зони и спални.
- Компактни кухненски боксове.
- Модерни и функционални бани.
Дизайн на Осветление
- Интериорно осветление с модерни тела.
- Интегрирано градинско осветление за уютна атмосфера.
Екстериор и Ландшафт
- Внимателно проектиран ландшафт с пътеки и зони за отдих.
- Обществени зони за пикник и барбекю.
Заключение
Проектът за вилното селище в гората с компактни бунгала тип A-frame предлага идеалното съчетание на съвременен стил и функционалност, осигурявайки уют и комфорт в хармония с природата. С уникалното си архитектурно решение и впечатляващ дизайн, това селище е проектирано да бъде не само естетически привлекателно, но и изключително удобно за живеене.